Circenses Raurica

Gespeichert von sia2 am Do., 15.08.2024 - 17:38
Hauptbild_Masterarbeiten
Schule
ETHZ
Jahr

Projekt von

Projekt von

Jérome Ammann

Begleitung

Begleitung

Emanuel Christ & Christoph Gantenbein, Arno Schlüter

Circenses Raurica
Text Masterpreis

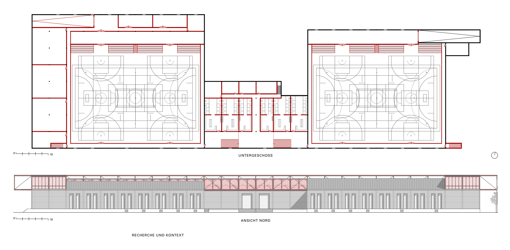
Anstatt einer neuen Sporthalle soll für den Turnverein Füllinsdorf bei Basel eine Logistik- und Lagerhalle umgebaut werden. Das Projekt soll eine Schnittstelle zwischen dem Sportverein als gesellschaftsbildender Institution und der Rheinstrasse als öffentlichem Raum bilden und so zur Entwicklung der Region beitragen. Das Gebäude wird entsprechend den verschiedenen Nutzungen in klimatische Zonen aufgeteilt: Räume mit erhöhtem Wärmebedarf, solche, die mit einer tieferen Raumtemperatur betrieben werden können und solche, die gekühlt werden müssen. So werden die Umkleiden mit Warmwasserspeichern durch solarthermische Anlagen beheizt. Zur Dämmung wird eine leichte, textile Hülle auf einer Holzständerkonstruktion eingeführt. Eine Pelletheizung erbringt die fehlende Heizleistung mithilfe einer Verdrängungslüftung, wenn solare und interne Einträge nicht vollständig für die Erwärmung des Gebäudes aufkommen können.

Text/Bild-Image
Bild/Text-Image
Bildbeschreibung
Bilder zur Verfügung gestellt / Images mises à disposition avec le projet / Foto courtesy
Text/Bild-Image

Weitere Projekte

HSLU
Anerkennung
2023
Projekt von:

Rebecca Baer

Begleitung:

Peter Althaus

ETHZ
Preis
2024
Projekt von:

Pauline Sauter

Begleitung:

Maria Conen, Max Maurer

HSLU
Anerkennung
2022
Projekt von:

Florian Gugger

Begleitung:

Johannes Käferstein (Projekt), Dr. Oliver Dufner (Buch)